Выберите город close

Горки-2АпрелевкаБалашихаБекасовоБелоозерскийБеседыБронницыВешкиВидноеВнуковоВолоколамскВоскресенскВоскресенскоеДедовскДзержинскийДмитровДолгопрудныйДомодедовоДубнаЕгорьевскЖелезнодорожныйЖуковскийЗарайскЗвенигородЗеленоградИвантеевкаИстраКашираКлинКоломнаКонстантиновоКоролёвКотельникиКрасноармейскКрасногорскКраснознаменскКрёкшиноКубинкаКуровскоеЛеснойЛесной городокЛобняЛосино-ПетровскийЛуховицыЛыткариноЛюберцыМалаховкаМалиноМедвежьи ОзёраМильковоМихневоМожайскМоскваМытищиНаро-ФоминскНахабиноНиколина ГораНогинскОдинцовоОктябрьскийОрехово-ЗуевоПавловский ПосадПодольскПротвиноПутилковоПушкиноПущиноРаменкиРаменскоеРеутовРузаРумянцевоСелятиноСергиев ПосадСеребряные ПрудыСерпуховСолнечногорскСтарая КупавнаСтолбоваяСтупиноТаганьковоТалдомТомилино ТроицкФрязиноХимкиХорловоЧерноголовкаЧерустиЧеховШатураЩелковоЩербинкаЭлектрогорскЭлектростальЭлектроуглиЯхрома
Выгодное предложение по акции «МОНТАЖ ПОД КЛЮЧ»
«СЕПТИК + ДОСТАВКА + МОНТАЖ + ПУСКО-НАЛАДКА»
Посмотреть цены

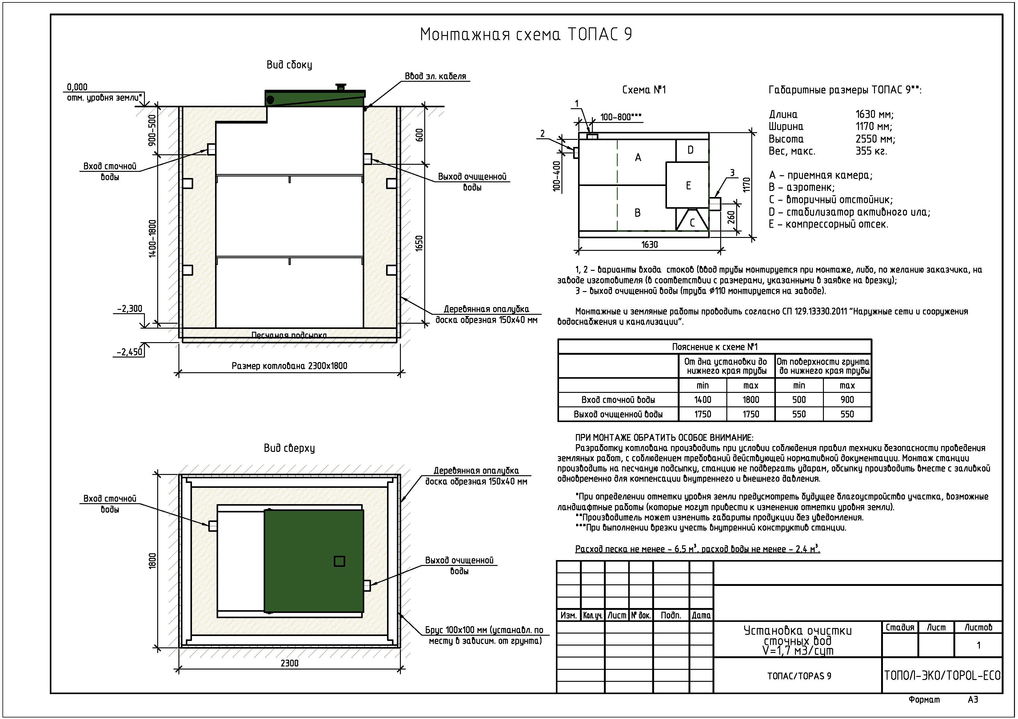
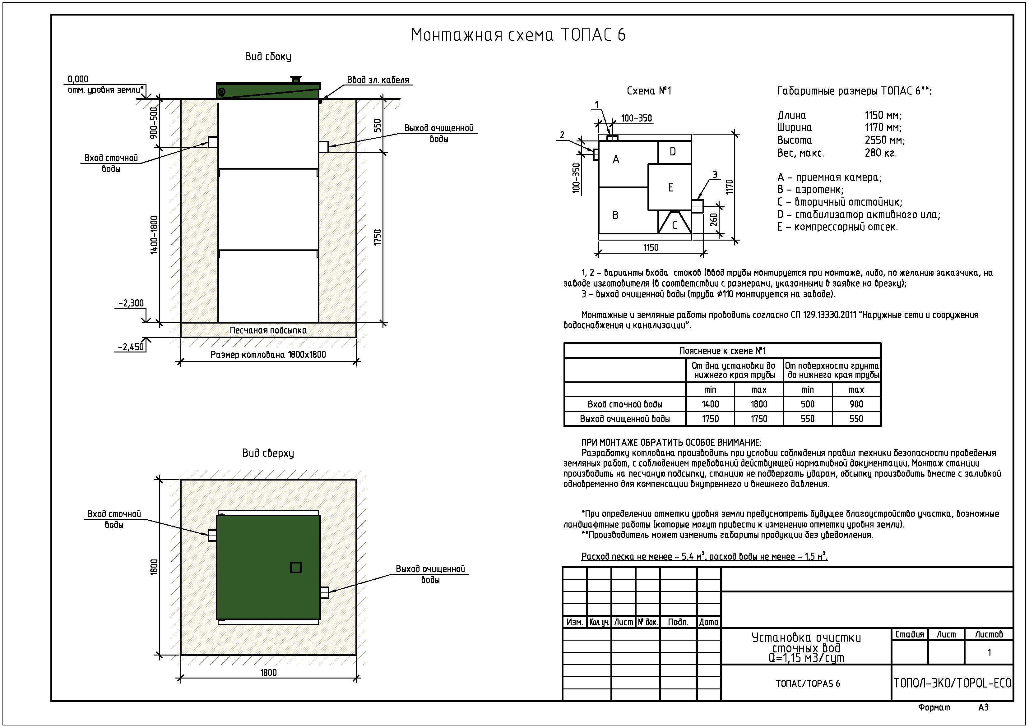
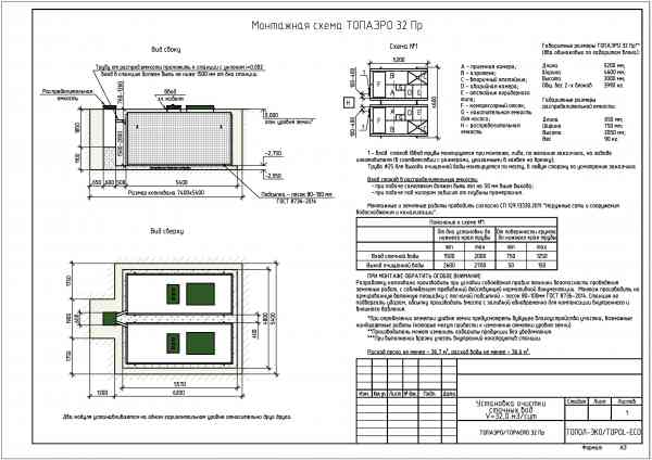
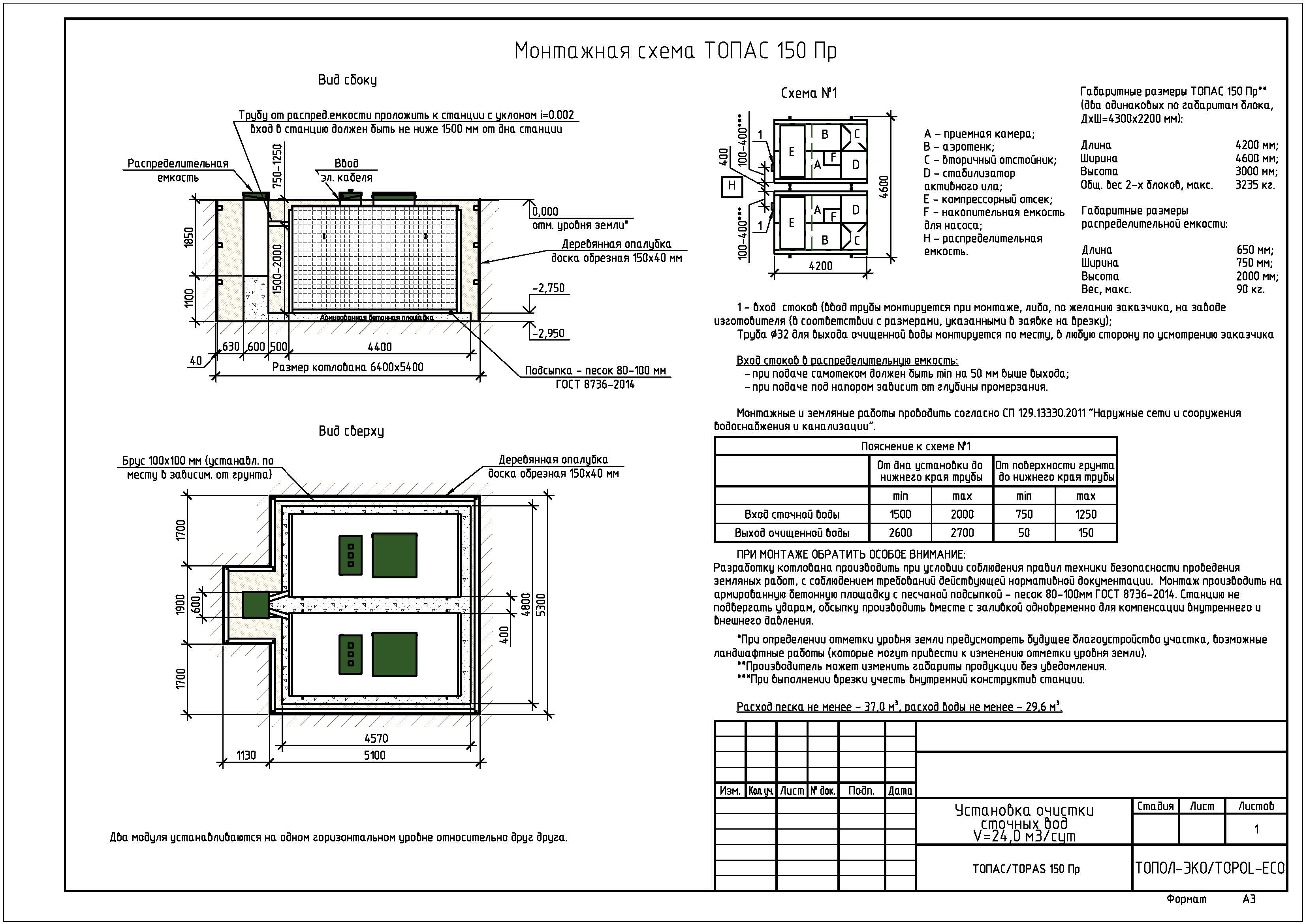
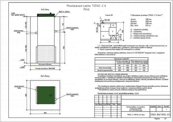
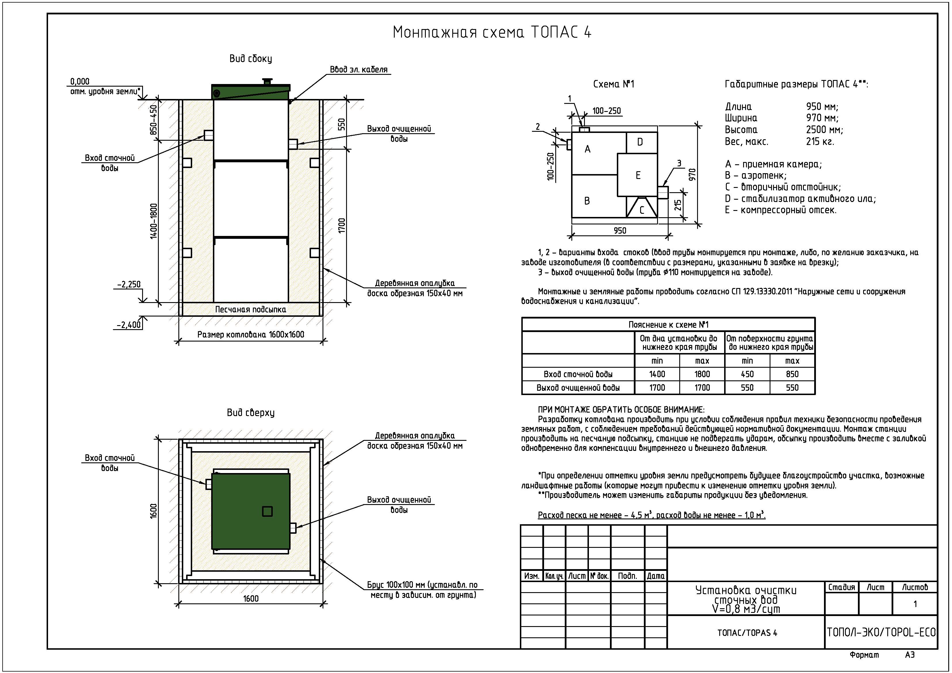
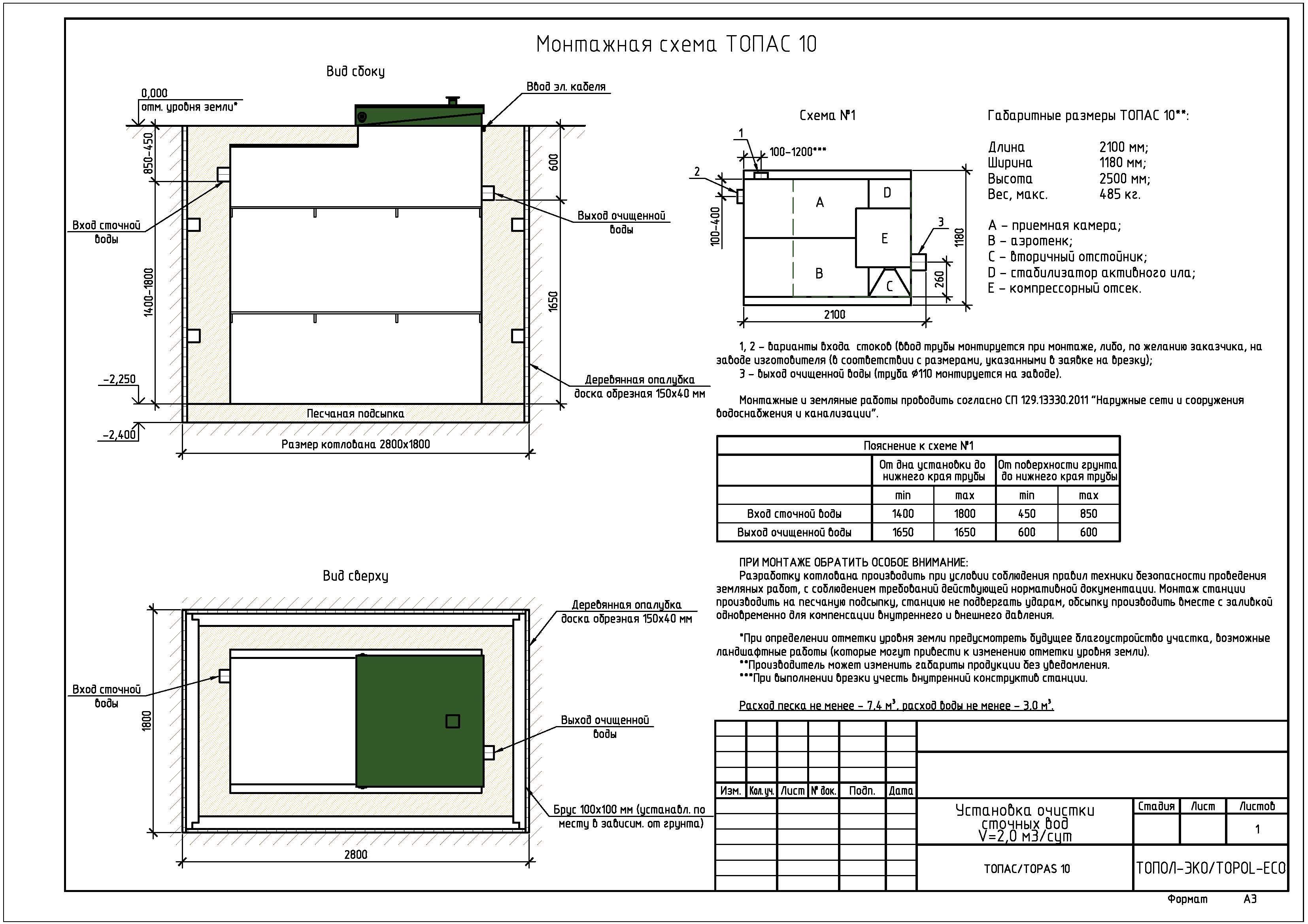
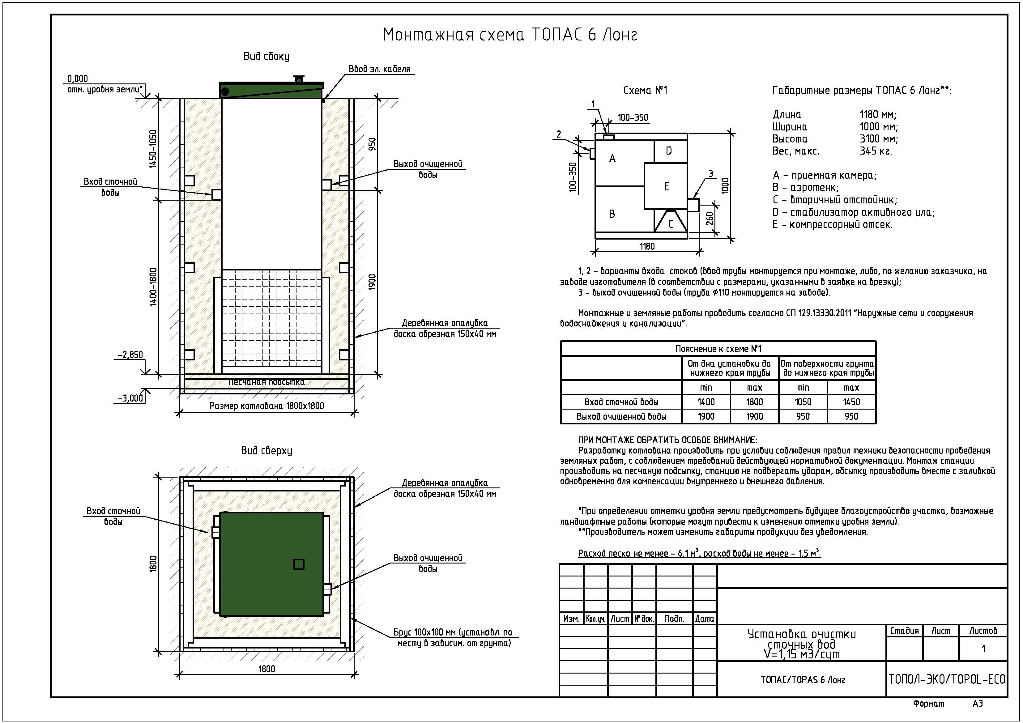
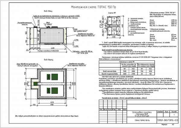
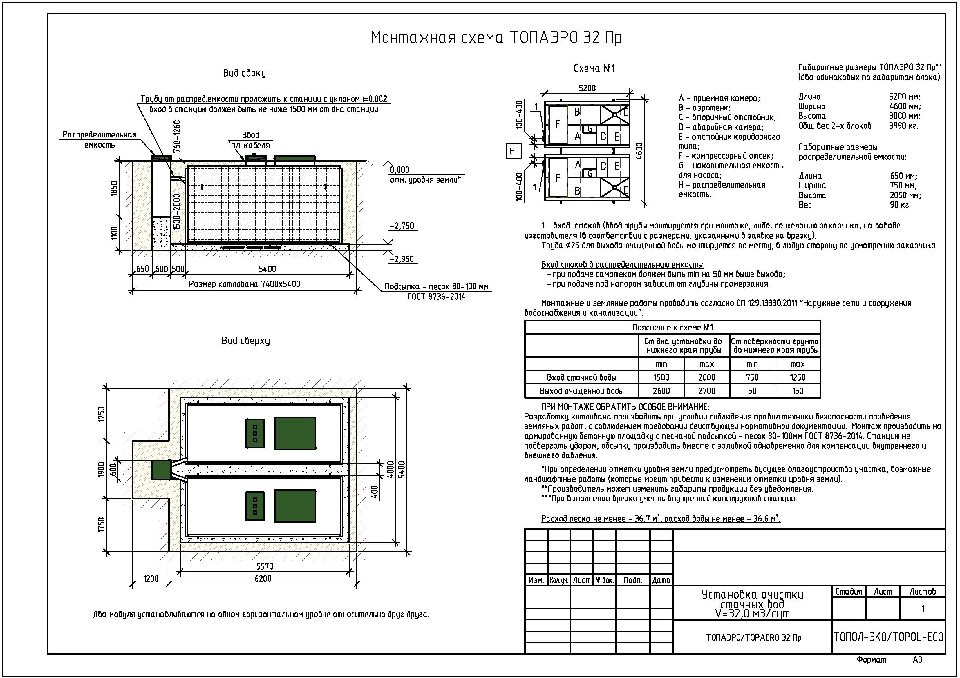
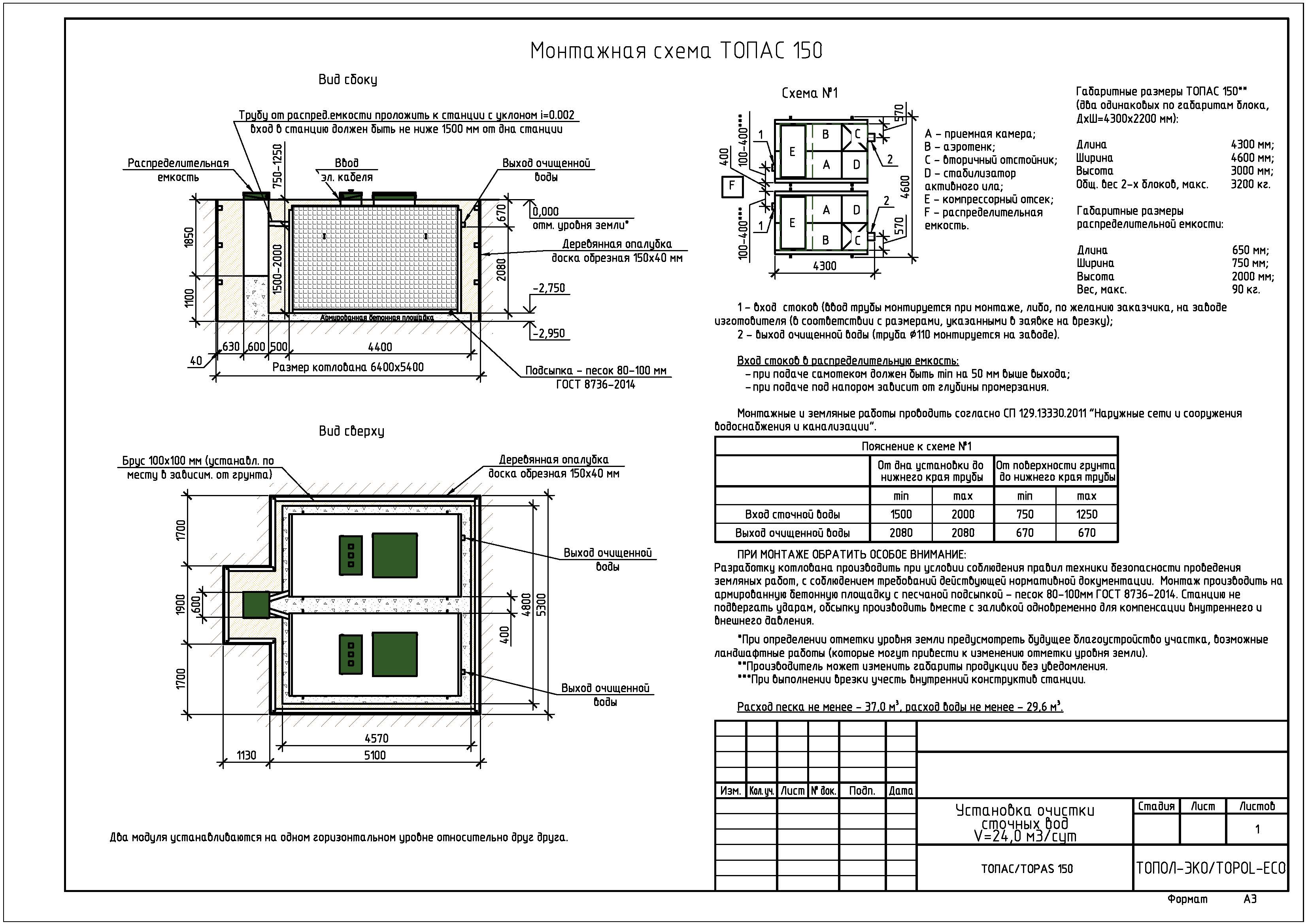
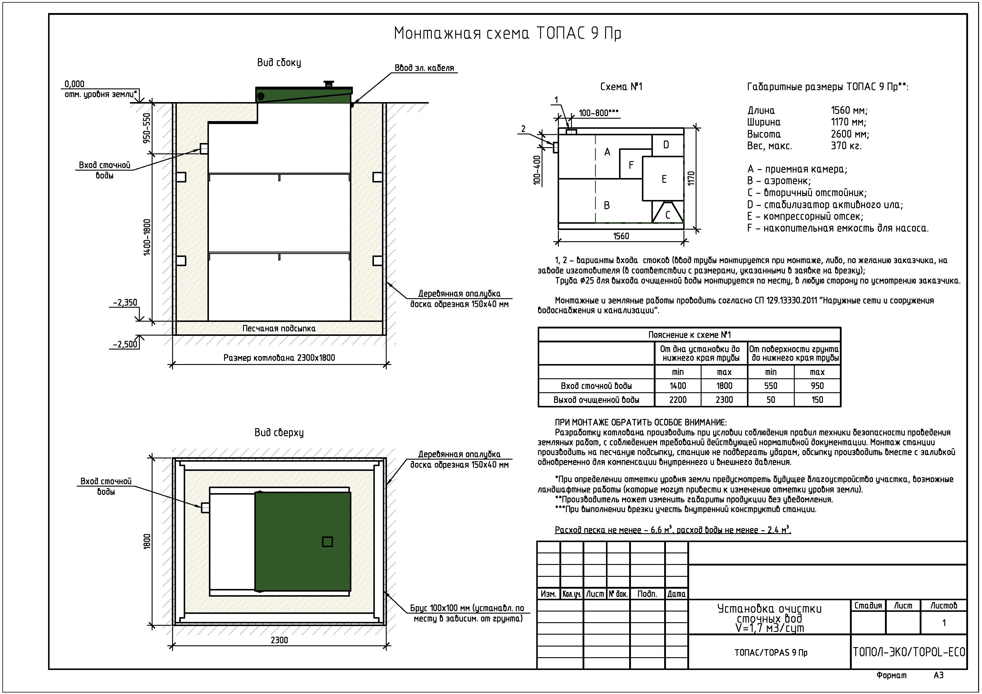
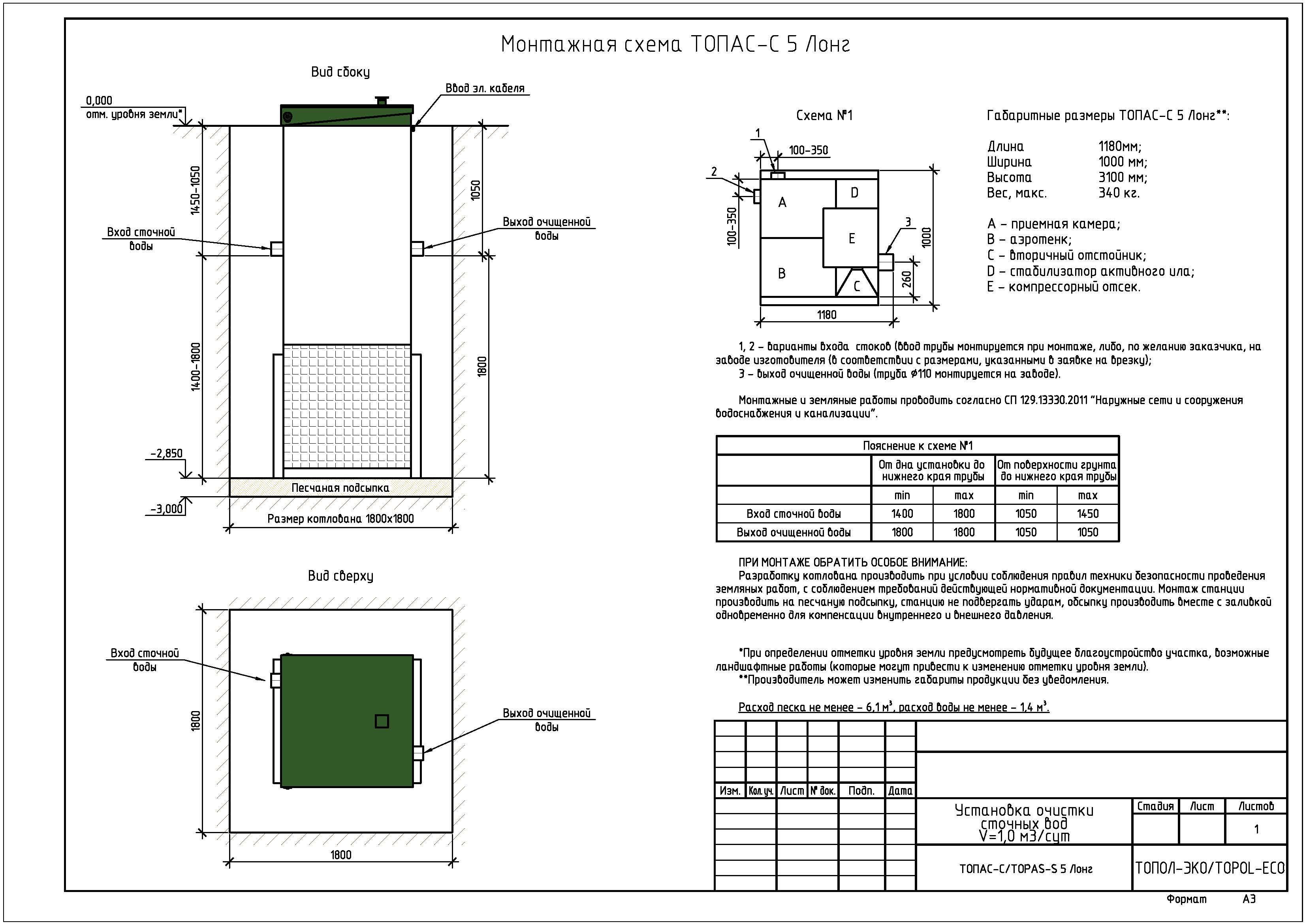
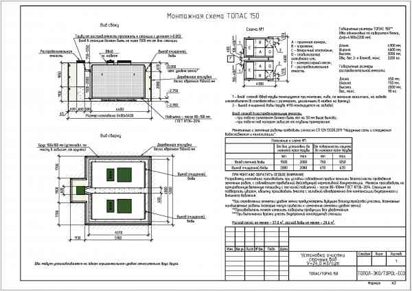
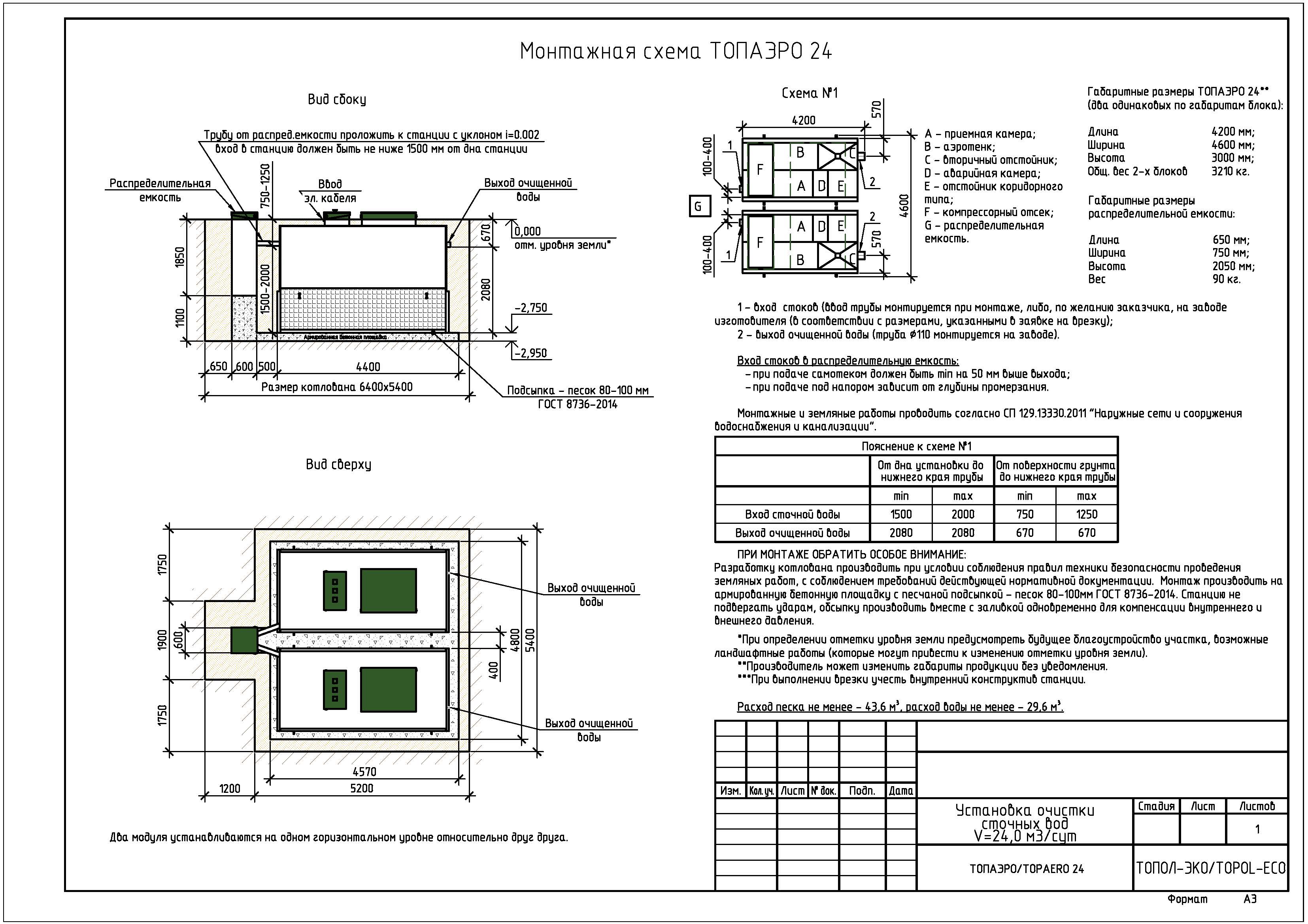
Монтажные схемы разработаны заводом-изготовителем для монтажа очистных сооружений Топас различных моделей и модификаций. В схемах указаны технические и конструктивные параметры, согласно которым копается котлован, устанавливается станция, врезается подводящая канализационная труба, подсоединяется или врезается отводящий трубопровод.

Оставьте заявку через форму на сайте для бесплатной консультации на объекте или приезжайте к нам в офис.

Наши менеджеры предоставят консультацию и подготовят смету с уникальным ценовым предложением на монтаж под ключ.

Заказ сметы со скидкой на монтаж септика Топас

Форма обратной связи

Оформите заявку в форме ниже и наш менеджер свяжется с вами в ближайшее время!